Грузовик Урал-4320

Годы выпуска 1977-

Модификации

Урал-4320-****-41 — шасси со стандартной («классической») металлической кабиной, грузоподъёмностью ~9 т.;
Урал-4320-19**-41 — длиннобазное шасси;
Урал-43203-****-41 — шасси с усиленной передней подвеской;
Урал-43204-****-40 — шасси трубоплетевозного тягача, увеличенная грузоподъемность;
Урал-5557-****-40 — шасси для монтажа технологического оборудования и специальных установок массой ~12-14 т.;
Урал-44202-****-41 — седельный тягач для эксплуатации с полуприцепом по всем видам дорог;
Урал-43206-****-41 — шасси с колёсной формулой 4×4;
Урал-4320*/5557*-****-5* — версия с новой более объёмной комфортной кабиной капотного типа, пластиковым оперением, подрессоренным сиденьем водителя;

Изображения

Урал-4320 6*6

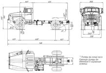
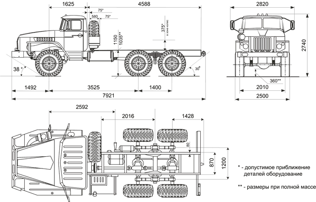
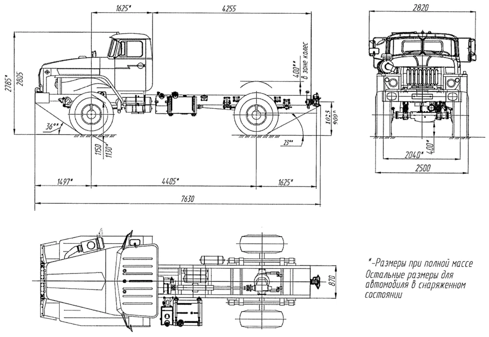
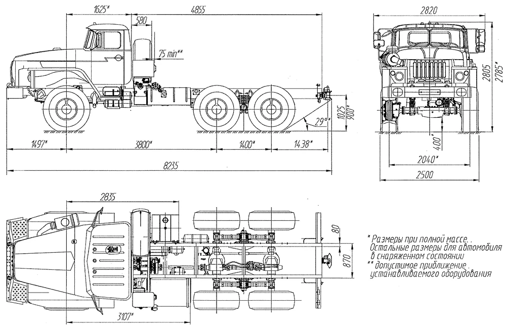
УралАЗ-4320Машина технической помощи МТП-А2.1 на шасси Урал-4320Колесный эвакотранспортер легкий КТ-Л (ТК-6АМ) на шасси Урал-4320Колесный эвакуационный тягач легкий КЭТ-Л (ТК-5ВМ) на шасси Урал-4320Компоновка кабины УралАЗ-4320Чертеж УралАЗ-4320-31Чертеж Урал-4320Чертеж Урал-4320-1912-40Чертеж Урал 4320 3255-0013-61 6x6Чертеж Урал 4320 3255-0022-61 6x6Чертеж Урал-4320-0111-61 6x6Чертеж Урал 4320 4320-1151-61 6x6Чертеж Урал-4320-1951-74 6x6Чертеж. Установка ППУА 1600/100 на базе Урал-4320Чертеж автопоезда лесовозного на базе УрАл-4320

 

АЛ-30/40 Урал-4320Чертеж Урал-4320 АЛ-30/40AЦ (АВ) 6,0 (8,0) (УРАЛ-4320)Чертеж автоцистерны AЦ 6,0 (УРАЛ 5557)Чертеж AЦ (АВ) 6,0 (8,0) (УРАЛ-4320)AЦ (АВ) 8,0 (УРАЛ 4320-58)Чертеж AЦ (АВ) 8,0 (УРАЛ 4320-58)Пожарная автоцистерна АЦ 6,0-40 (5557)Пожарная автоцистерна АЦ 6,0-40 (5557)

УралАЗ-4320 рестайлинговый

УралАЗ-4320 рестайлинговый

Урал-5557

Урал-55571ТУрал-5557Чертеж Урал-5557Урал-55571-0121-72 6x6Урал-55571-1151-60 6x6Чертеж Урал-5557-1151-72 6x6

Урал-4320 4*4

Урал-43206Чертеж Урал-43206-0111-61 4x4Чертеж Урал-43206-0551-71 4x4Чертеж Урал-43206-1151-61 4x4

Урал-3255

Чертеж Урал-32551-0013-61 6x6Чертеж Урал-32552-0013-61 4x4

Урал-4420

Урал-44202-0311-60 6x6

Шасси Урал-432067

Шасси Урал-432067Шасси Урал-432067Чертеж шасси Урал-432067


Правообладателям